
FDPL-Z356
- 95 m²
- 2
- 2
Ceny
(netto)
389 500 zł
(4100 zł/m²)441 750 zł
(4650 zł/m²)513 000 zł
(5400 zł/m²)Sprawdź co zawierają pakiety
Opis
Parametry budynku
Powierzchnia użytkowa
95 m²
Powierzchnia zabudowy
128.4 m²
Kubatura
281.98 m³
Wysokość budynku
6.05 m
Kąt nachylenia dachu
25°
Powierzchnia dachu
189.48 m²
Minimalne wymiary działki
16,36 x 23,06 m
Strop (parter)
szkielet stalowy
Pokrycie dachu
gont / blacha / blachodachówka / dachówka
Opis
FDPL-Z356 Czysta, parterowa bryła z dachem czterospadowym (kalenica prostopadła do drogi), zaprojektowana pod wąskie parcele. Trójwarstwowa elewacja łączy biały tynk, drewno i płyty elewacyjne, dając spokojny, nowoczesny wygląd. Z zadaszonego podcienia wchodzimy do sieni i czytelnego układu: strefa dzienna po prawej, nocna po lewej. Salon jest jasny, z dużymi przeszkleniami i wyjściem na częściowo zadaszony taras; kuchnię można wykonać jako otwartą lub zamkniętą. Przy salonie przewidziano WC dla gości, a pomieszczenie gospodarcze porządkuje sprzęty i zaplecze. Część nocna to 2 sypialnie, w tym master z garderobą. Prosta konstrukcja i metraż poniżej 100 m² ułatwiają realizację i optymalizują koszt — funkcjonalna propozycja dla inwestorów z węższą działką, ceniących klarowny podział stref.
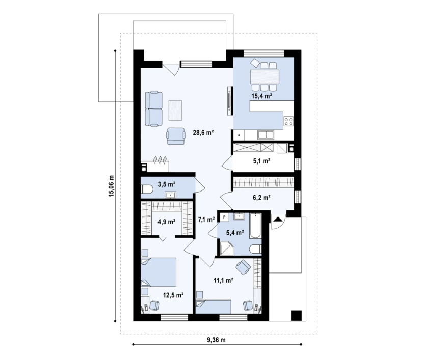
Parter 94,5m²

Sień – 6,2 m² Hol – 7,1 m² Kuchnia + jadalnia – 15,4 m² Salon – 28,6 m² WC – 3,5 m² Garderoba – 4,9 m² Pokój – 12,5 m² Pokój – 11,1 m² Łazienka – 5,4 m² Pomieszczenie gospodarcze – 0,0 m² / 5,1 m²
Działka

Minimalne wymiary działki szerokość 16,36 m długość 23,06 m Wymiary elewacji frontowej 9,36 m
Wymarzony dom w 3 krokach
1. Wybór projektu i formalności
Użytkownik wybiera model domu i jego konfigurację. Pomagamy dopasować projekt do działki oraz budżetu.
2. Produkcja i montaż
Wytwarzamy moduły w kontrolowanych warunkach i montujemy je na Twojej działce w krótkim czasie.
3. Odbiór i gwarancja
Przekazujemy gotowy dom pod klucz. Zapewniamy wsparcie posprzedażowe i wieloletnią gwarancję.


Zaufany producent domów prefabrykowanych
Projektujemy, produkujemy i montujemy domy modułowe pod klucz. Pomagamy w formalnościach, dostarczamy fundament, transport i serwis.
- Produkcja w hali fabrycznej zapewnia doskonałą jakość wykonania i ochronę przed warunkami atmosferycznymi.
- Montaż na miejscu trwa zaledwie kilka dni — nie czekasz miesięcy na ukończenie budowy.
- Współpracujemy z architektami i doradcami, aby każdy projekt spełniał indywidualne potrzeby.

FAQ — szybkie odpowiedzi
Od zamówienia do odbioru kluczy — realizacja trwa 4-6 miesięcy, montaż na działce do 14 dni.
Modele do 70 m² można postawić na zgłoszenie — pomagamy w całym procesie. Przy większych wymagane jest pozwolenie budowlane.
Od 3 500 zł/m². W zależności od pakietu wykończenia obejmuje on konstrukcję, wykończenie, fundament, instalacje i montaż. Dokładny koszt po wycenie.
Tak — oferujemy kompleksową obsługę. Transport i montaż zapewniamy zawsze. Fundament płytowy to dodatkowy koszt, natomiast w pakiecie All-Inclusive jest on zawarty w cenie. Wymiana gruntu liczona jest zgodnie z faktycznie poniesionymi kosztami.
Tak — współpracujemy z bankami i oferujemy pomoc w uzyskaniu kredytu hipotecznego na nasze domy.

