Pakiety wykończenia
Podane ceny są cenami szacunkowymi. Skontaktuj się z nami po dokładną wycenę.
Parametry budynku
Szczegółowa specyfikacja techniczna modelu
Powierzchnia netto
254.9 m²
Powierzchnia użytkowa
193.89 m²
Powierzchnia zabudowy
240.5 m²
Powierzchnia garażu
31.45 m²
Kubatura
629.39 m³
Wysokość budynku
6.78 m
Kąt nachylenia dachu
25°
Powierzchnia dachu
289 m²
Minimalne wymiary działki
23,84 x 26 m
Pokrycie dachu
blachodachówka / dachówka
Wentylacja
mechaniczna (rekuperacja)
Opis
Z158 to projekt domu z poddaszem użytkowym i garażem dwustanowiskowym o współczesnym stylu. Na parterze znajduje się jasny, przestronny salon płączony jednoprzestrzennie z jadalnią i kuchnią, przy której umiesczono spiżarnię. W centralnej części budynku zaprojektowany został hol oraz wc. Z sieni jest możliwość przejścia do garażu, przez pomieszczenie gospodarcze. W prawej części budynku zlokalizowano łazienkę oraz trzy duże sypialnie. Na piętrze znajdują się dwa dodatkowe pokoje, a także łazienka z miejscem na dużą wannę. Z158 to idealna propozycja dla osób lubiących innowacyjne rozwiązania. Jego niepowtarzalną formę i przemyślany rozkład pomieszczeń doceni każdy domownik.
Parter 152,9m²
Sień – 4,3 m² Pomieszczenie gospodarcze – 5,7 m² Łazienka – 11,0 m² Pokój – 14,5 m² Salon + jadalnia – 47,5 m² Kuchnia – 9,6 m² Pokój – 15,0 m² Pokój – 18,1 m² Hol – 10,3 m² Hol – 8,4 m² WC – 5,2 m² Spiżarnia – 3,2 m² Garaż – 31,5 m²

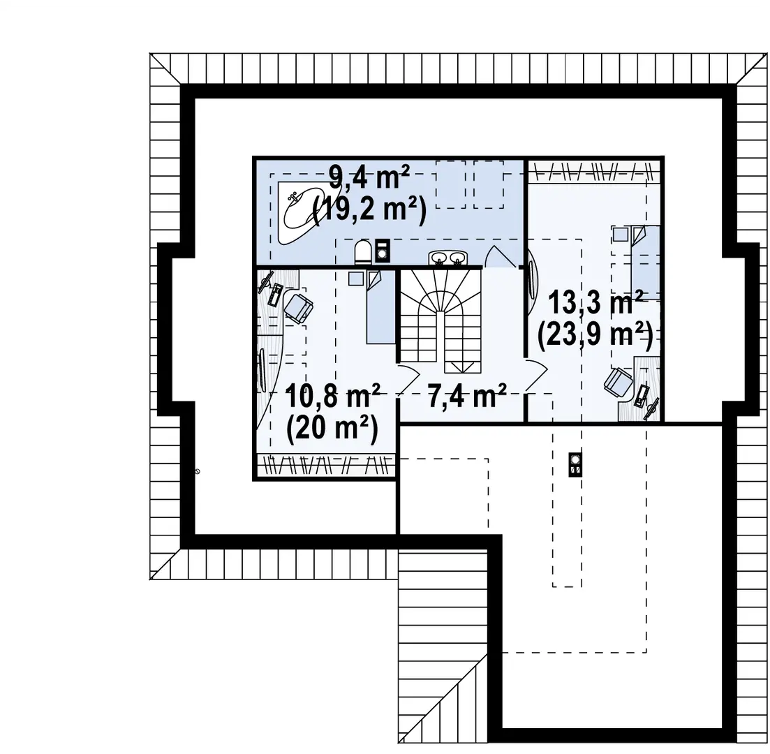
Poddasze 41,0m²
Pokój – 10,8 m² / 20,0 m² Pokój – 13,3 m² / 23,9 m² Łazienka – 9,5 m² / 19,2 m² Hol – 7,5 m²

Działka
Minimalne wymiary działki szerokość 23,84 m długość 26 m Wymiary elewacji frontowej 15,84 m

Bezpieczny model płatności
Inwestycja podzielona na 8 etapów. Kolejną transzę wpłacasz dopiero po zweryfikowaniu efektów poprzedniej. Zero ryzyka.
Gwarancja stałej ceny
Po podpisaniu umowy cena materiałów zostaje zamrożona na cały okres budowy
- Żadnych dodatkowych kosztów w trakcie realizacji
- Ochrona przed wzrostami cen na rynku
- Pełna przewidywalność budżetu
Projekt i Rezerwacja
Uruchomienie Maszyn
Odbiór w Fabryce
Pakowanie i Wysyłka
Materiał na Działce
Złożenie Bryły
Stan Deweloperski
Przekazanie Kluczy


Zaufany producent domów szkieletowych
Projektujemy, produkujemy i montujemy domy szkieletowe pod klucz. Pomagamy w formalnościach, dostarczamy fundament, transport i serwis.
- Produkcja w hali fabrycznej zapewnia doskonałą jakość wykonania i ochronę przed warunkami atmosferycznymi.
- Montaż na miejscu trwa zaledwie kilka dni — nie czekasz miesięcy na ukończenie budowy.
Podoba Ci się projekt, ale potrzebujesz zmian?
Dostosujemy układ pomieszczeń i bryłę do Twoich potrzeb. Z naszymi architektami zmienisz projekt tak, by był idealny.
- Dowolna zmiana układu ścian działowych
- Dostosowanie wielkości i rozmieszczenia okien
- Możliwość modyfikacji bryły budynku
- Profesjonalne doradztwo naszych architektów

FAQ — szybkie odpowiedzi
Od zamówienia do odbioru kluczy — realizacja trwa 4-6 miesięcy, montaż na działce do 14 dni.
Modele do 70 m² można postawić na zgłoszenie — pomagamy w całym procesie. Przy większych wymagane jest pozwolenie budowlane.
Od 4 650 zł/m². W zależności od pakietu wykończenia obejmuje on konstrukcję, wykończenie, fundament, instalacje i montaż. Dokładny koszt po wycenie.
Tak — oferujemy kompleksową obsługę. Transport i montaż zapewniamy zawsze. Fundament płytowy to dodatkowy koszt, natomiast w pakiecie All-Inclusive jest on zawarty w cenie. Wymiana gruntu liczona jest zgodnie z faktycznie poniesionymi kosztami.
Tak — współpracujemy z bankami i oferujemy pomoc w uzyskaniu kredytu hipotecznego na nasze domy.


