Pakiety wykończenia
Podane ceny są cenami szacunkowymi. Skontaktuj się z nami po dokładną wycenę.
Parametry budynku
Szczegółowa specyfikacja techniczna modelu
Powierzchnia netto
164.6 m²
Powierzchnia użytkowa
125.3 m²
Powierzchnia zabudowy
206.7 m²
Powierzchnia garażu
33.3 m²
Kubatura
715.57 m³
Wysokość budynku
7.08 m
Kąt nachylenia dachu
25°
Powierzchnia dachu
291.35 m²
Minimalne wymiary działki
22,46 x 26,06 m
Pokrycie dachu
gont / blacha / blachodachówka / dachówka
Wentylacja
mechaniczna (rekuperacja)
Opis
Z200 to komfortowy dom parterowy z garażem dwustanowiskowym dostępnym od frontu budynku. Elewacje i bryła wyróżniają się nowoczesną aczkolwiek spokojną i wyważoną architekturą z oryginalnymi dodatkami. Wnętrze domu jest podzielone na dwie części: dzienną i nocną. Strefę dzienną tworzy przestronny salon z dużymi przeszkleniami, i jadalnia. Stąd jest także bezpośrednie przejście do kuchni, która może zostać oddzielona od salonu za pomocą suwanych drzwi. Lewa część domu to strefa nocna. Znajduje się tu łazienka i trzy sypialnie, w tym jedna zprywatnym wyjściem na zadaszony taras. Dodatkowym atutem jest bezpośredni dostęp z domu do dwustanowiskowego garażu. W holu przewidziane zostało miejsce na schody klapowe na strych. Dom Z200 można ogrzewać na wiele sposobów począwszy od nowoczesnych ekokominków na pelety, jak również węglem czy gazem. Pozwala na to pomieszczenie gospodarcze dostępne z garaż
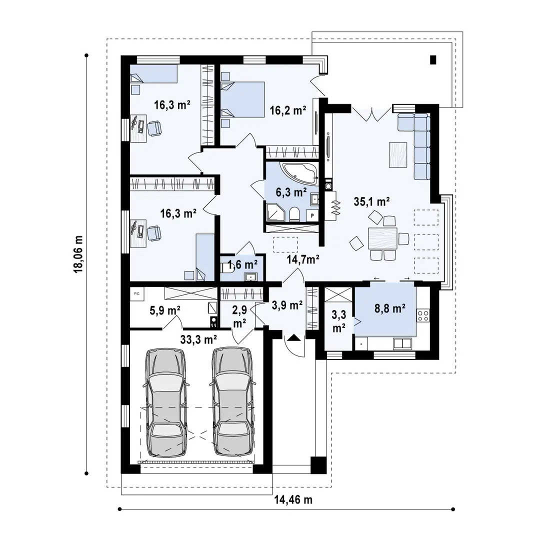
Parter125,3m²
Sień – 3,9 m² Garderoba – 2,9 m² Hol – 14,7 m² Kuchnia – 8,8 m² Spiżarnia – 3,3 m² Salon + jadalnia – 35,1 m² Łazienka – 6,3 m² Pokój – 16,2 m² Pokój – 16,3 m² Pokój – 16,3 m² WC – 1,6 m² Pomieszczenie gospodarcze – 0,0 m² / 5,9 m² Garaż – 0,0 m² / 33,3 m²

Działka
Minimalne wymiary działki szerokość 22,46 m długość 26,06 m Wymiary elewacji frontowej 14,46 m

Bezpieczny model płatności
Inwestycja podzielona na 8 etapów. Kolejną transzę wpłacasz dopiero po zweryfikowaniu efektów poprzedniej. Zero ryzyka.
Gwarancja stałej ceny
Po podpisaniu umowy cena materiałów zostaje zamrożona na cały okres budowy
- Żadnych dodatkowych kosztów w trakcie realizacji
- Ochrona przed wzrostami cen na rynku
- Pełna przewidywalność budżetu
Projekt i Rezerwacja
Uruchomienie Maszyn
Odbiór w Fabryce
Pakowanie i Wysyłka
Materiał na Działce
Złożenie Bryły
Stan Deweloperski
Przekazanie Kluczy


Zaufany producent domów szkieletowych
Projektujemy, produkujemy i montujemy domy szkieletowe pod klucz. Pomagamy w formalnościach, dostarczamy fundament, transport i serwis.
- Produkcja w hali fabrycznej zapewnia doskonałą jakość wykonania i ochronę przed warunkami atmosferycznymi.
- Montaż na miejscu trwa zaledwie kilka dni — nie czekasz miesięcy na ukończenie budowy.
Podoba Ci się projekt, ale potrzebujesz zmian?
Dostosujemy układ pomieszczeń i bryłę do Twoich potrzeb. Z naszymi architektami zmienisz projekt tak, by był idealny.
- Dowolna zmiana układu ścian działowych
- Dostosowanie wielkości i rozmieszczenia okien
- Możliwość modyfikacji bryły budynku
- Profesjonalne doradztwo naszych architektów

FAQ — szybkie odpowiedzi
Od zamówienia do odbioru kluczy — realizacja trwa 4-6 miesięcy, montaż na działce do 14 dni.
Modele do 70 m² można postawić na zgłoszenie — pomagamy w całym procesie. Przy większych wymagane jest pozwolenie budowlane.
Od 4 650 zł/m². W zależności od pakietu wykończenia obejmuje on konstrukcję, wykończenie, fundament, instalacje i montaż. Dokładny koszt po wycenie.
Tak — oferujemy kompleksową obsługę. Transport i montaż zapewniamy zawsze. Fundament płytowy to dodatkowy koszt, natomiast w pakiecie All-Inclusive jest on zawarty w cenie. Wymiana gruntu liczona jest zgodnie z faktycznie poniesionymi kosztami.
Tak — współpracujemy z bankami i oferujemy pomoc w uzyskaniu kredytu hipotecznego na nasze domy.


