Pakiety wykończenia
Podane ceny są cenami szacunkowymi. Skontaktuj się z nami po dokładną wycenę.
Parametry budynku
Szczegółowa specyfikacja techniczna modelu
Powierzchnia netto
94.2 m²
Powierzchnia użytkowa
69.28 m²
Powierzchnia zabudowy
65.8 m²
Kubatura
232.15 m³
Wysokość budynku
7.55 m
Kąt nachylenia dachu
40°
Powierzchnia dachu
100.04 m²
Minimalne wymiary działki
16,06 x 15,26 m
Pokrycie dachu
gont / blacha / blachodachówka / dachówka
Wentylacja
mechaniczna (rekuperacja)
Opis
Projekt Z211 v2 tz jest domem dość oryginalnym w swym wyglądzie, a zarazem zwartym w swojej formie. Dzięki prostej bryle z dwuspadowym dachem, umożliwia to szybką i niedrogą realizację. Na parterze znajduje się kuchnia, jadalnia oraz salon. Wszystkie te pomieszczenia zostały integralnie połączone. Dodatkowo część pomieszczenia gospodarczego można wykorzystać jako spiżarnia. Przy schodach znajduję się gabinet, który doskonale sprawdzi się jako pokój gościny. Na piętrze znajdują się trzy pokoje, każdy posiada miejsce na szafę - garderobę i dość przestronna łazienka. Z211 v2 tz to idealny dom dla ludzi ceniących prostą formę, a zarazem praktyczność. Pełna gama pomieszczeń, sprawia, że znajdzie się tam miejsce dla każdego.
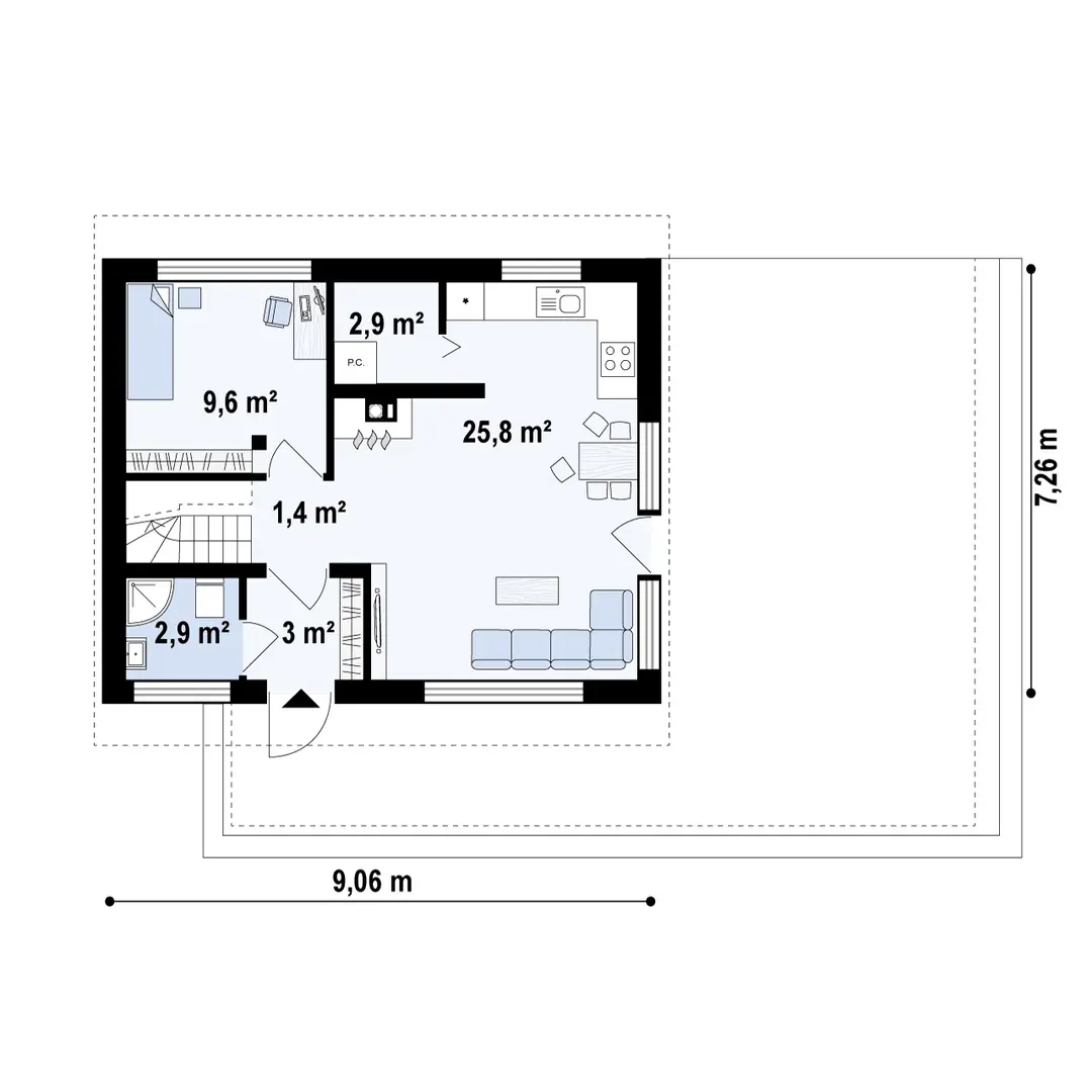
Parter 42,2m²
Hol – 1,4 m² Łazienka – 2,9 m² Pomieszczenie gospodarcze – 0,0 m² / 2,9 m² Pokój – 9,2 m² / 9,6 m² Salon + kuchnia – 25,8 m² Sień – 3,0 m²

Poddasze 27,1m²
Hol – 4,5 m² Łazienka – 3,2 m² / 7,6 m² Pokój – 4,9 m² / 9,3 m² Pokój – 6,8 m² / 10,9 m² Pokój – 7,6 m² / 11,8 m² Schody – 0,0 m² / 4,5 m²

Działka
Minimalne wymiary działki szerokość 16,06 m długość 15,26 m Wymiary elewacji frontowej 9,06 m

Bezpieczny model płatności
Inwestycja podzielona na 8 etapów. Kolejną transzę wpłacasz dopiero po zweryfikowaniu efektów poprzedniej. Zero ryzyka.
Gwarancja stałej ceny
Po podpisaniu umowy cena materiałów zostaje zamrożona na cały okres budowy
- Żadnych dodatkowych kosztów w trakcie realizacji
- Ochrona przed wzrostami cen na rynku
- Pełna przewidywalność budżetu
Projekt i Rezerwacja
Uruchomienie Maszyn
Odbiór w Fabryce
Pakowanie i Wysyłka
Materiał na Działce
Złożenie Bryły
Stan Deweloperski
Przekazanie Kluczy


Zaufany producent domów szkieletowych
Projektujemy, produkujemy i montujemy domy szkieletowe pod klucz. Pomagamy w formalnościach, dostarczamy fundament, transport i serwis.
- Produkcja w hali fabrycznej zapewnia doskonałą jakość wykonania i ochronę przed warunkami atmosferycznymi.
- Montaż na miejscu trwa zaledwie kilka dni — nie czekasz miesięcy na ukończenie budowy.
Podoba Ci się projekt, ale potrzebujesz zmian?
Dostosujemy układ pomieszczeń i bryłę do Twoich potrzeb. Z naszymi architektami zmienisz projekt tak, by był idealny.
- Dowolna zmiana układu ścian działowych
- Dostosowanie wielkości i rozmieszczenia okien
- Możliwość modyfikacji bryły budynku
- Profesjonalne doradztwo naszych architektów

FAQ — szybkie odpowiedzi
Od zamówienia do odbioru kluczy — realizacja trwa 4-6 miesięcy, montaż na działce do 14 dni.
Modele do 70 m² można postawić na zgłoszenie — pomagamy w całym procesie. Przy większych wymagane jest pozwolenie budowlane.
Od 4 650 zł/m². W zależności od pakietu wykończenia obejmuje on konstrukcję, wykończenie, fundament, instalacje i montaż. Dokładny koszt po wycenie.
Tak — oferujemy kompleksową obsługę. Transport i montaż zapewniamy zawsze. Fundament płytowy to dodatkowy koszt, natomiast w pakiecie All-Inclusive jest on zawarty w cenie. Wymiana gruntu liczona jest zgodnie z faktycznie poniesionymi kosztami.
Tak — współpracujemy z bankami i oferujemy pomoc w uzyskaniu kredytu hipotecznego na nasze domy.


