Pakiety wykończenia
Podane ceny są cenami szacunkowymi. Skontaktuj się z nami po dokładną wycenę.
Parametry budynku
Szczegółowa specyfikacja techniczna modelu
Powierzchnia netto
99.94 m²
Powierzchnia użytkowa
78.92 m²
Powierzchnia zabudowy
70.1 m²
Kubatura
256.15 m³
Wysokość budynku
7.63 m
Kąt nachylenia dachu
40° / 6°
Powierzchnia dachu
138.32 m²
Minimalne wymiary działki
17,66 x 15,26 m
Pokrycie dachu
gont / blacha / blachodachówka / dachówka
Wentylacja
mechaniczna (rekuperacja)
Opis
Szybki w realizacji, ekonomiczny w utrzymaniu, wygodny dom z gabinetem na parterze
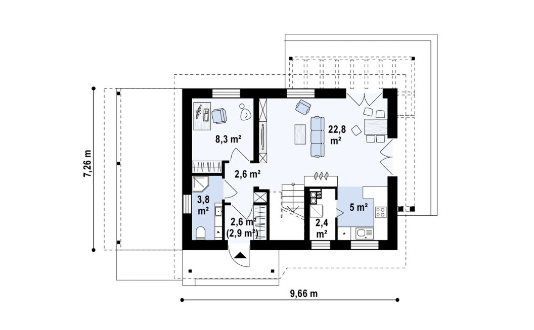
Parter 45,0m²
Sień – 2,6 m² / 2,9 m² Hol – 2,6 m² Łazienka – 3,8 m² Gabinet – 8,3 m² Salon + jadalnia – 22,8 m² Kuchnia – 5,0 m² Pomieszczenie gospodarcze – 0,0 m² / 2,4 m²

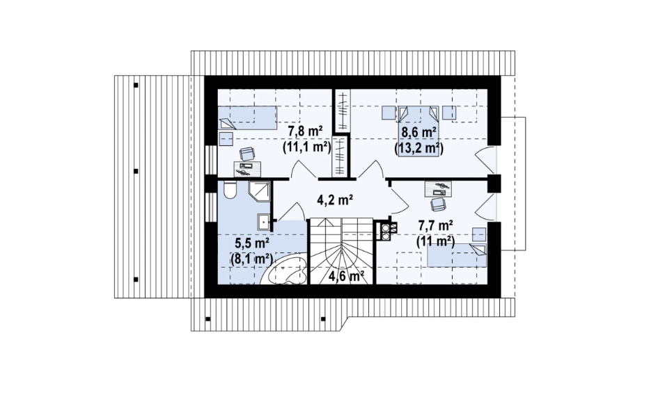
Poddasze 33,9m²
Hol – 4,2 m² Pokój – 7,8 m² / 11,1 m² Pokój – 8,6 m² / 13,2 m² Pokój – 7,7 m² / 11,0 m² Łazienka – 5,5 m² / 8,1 m² Schody – 0,0 m² / 4,6 m²

Działka
Minimalne wymiary działki szerokość 17,66 m długość 15,26 m Wymiary elewacji frontowej 9,66 m

Bezpieczny model płatności
Inwestycja podzielona na 8 etapów. Kolejną transzę wpłacasz dopiero po zweryfikowaniu efektów poprzedniej. Zero ryzyka.
Gwarancja stałej ceny
Po podpisaniu umowy cena materiałów zostaje zamrożona na cały okres budowy
- Żadnych dodatkowych kosztów w trakcie realizacji
- Ochrona przed wzrostami cen na rynku
- Pełna przewidywalność budżetu
Projekt i Rezerwacja
Uruchomienie Maszyn
Odbiór w Fabryce
Pakowanie i Wysyłka
Materiał na Działce
Złożenie Bryły
Stan Deweloperski
Przekazanie Kluczy


Zaufany producent domów szkieletowych
Projektujemy, produkujemy i montujemy domy szkieletowe pod klucz. Pomagamy w formalnościach, dostarczamy fundament, transport i serwis.
- Produkcja w hali fabrycznej zapewnia doskonałą jakość wykonania i ochronę przed warunkami atmosferycznymi.
- Montaż na miejscu trwa zaledwie kilka dni — nie czekasz miesięcy na ukończenie budowy.
Podoba Ci się projekt, ale potrzebujesz zmian?
Dostosujemy układ pomieszczeń i bryłę do Twoich potrzeb. Z naszymi architektami zmienisz projekt tak, by był idealny.
- Dowolna zmiana układu ścian działowych
- Dostosowanie wielkości i rozmieszczenia okien
- Możliwość modyfikacji bryły budynku
- Profesjonalne doradztwo naszych architektów

FAQ — szybkie odpowiedzi
Od zamówienia do odbioru kluczy — realizacja trwa 4-6 miesięcy, montaż na działce do 14 dni.
Modele do 70 m² można postawić na zgłoszenie — pomagamy w całym procesie. Przy większych wymagane jest pozwolenie budowlane.
Od 4 650 zł/m². W zależności od pakietu wykończenia obejmuje on konstrukcję, wykończenie, fundament, instalacje i montaż. Dokładny koszt po wycenie.
Tak — oferujemy kompleksową obsługę. Transport i montaż zapewniamy zawsze. Fundament płytowy to dodatkowy koszt, natomiast w pakiecie All-Inclusive jest on zawarty w cenie. Wymiana gruntu liczona jest zgodnie z faktycznie poniesionymi kosztami.
Tak — współpracujemy z bankami i oferujemy pomoc w uzyskaniu kredytu hipotecznego na nasze domy.


