Pakiety wykończenia
Podane ceny są cenami szacunkowymi. Skontaktuj się z nami po dokładną wycenę.
Parametry budynku
Szczegółowa specyfikacja techniczna modelu
Powierzchnia netto
89.45 m²
Powierzchnia użytkowa
83.44 m²
Powierzchnia zabudowy
116.8 m²
Kubatura
249.57 m³
Wysokość budynku
5.86 m
Kąt nachylenia dachu
25°
Powierzchnia dachu
212.58 m²
Minimalne wymiary działki
15,06 x 22,56 m
Pokrycie dachu
blacha / blachodachówka / dachówka
Opis
Dom parterowy na wąską działkę
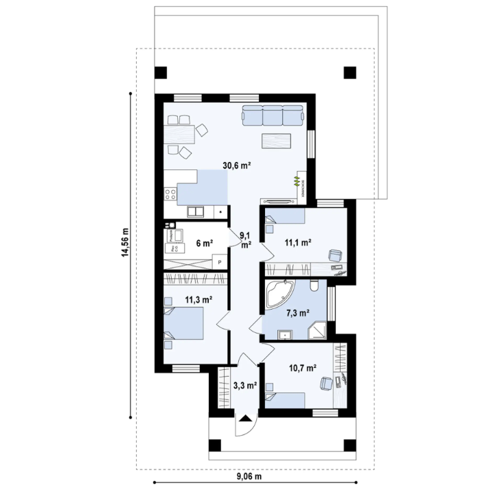
Parter 83,4m²
Hol – 9,1 m² Łazienka – 7,3 m² Pomieszczenie gospodarcze – 0,0 m² / 6,0 m² Pokój – 10,7 m² Pokój – 11,1 m² Pokój – 11,3 m² Salon + kuchnia – 30,6 m² Sień – 3,3 m²

Działka
Minimalne wymiary działki szerokość 15,06 m długość 22,56 m Wymiary elewacji frontowej 9,06 m

Bezpieczny model płatności
Inwestycja podzielona na 8 etapów. Kolejną transzę wpłacasz dopiero po zweryfikowaniu efektów poprzedniej. Zero ryzyka.
Gwarancja stałej ceny
Po podpisaniu umowy cena materiałów zostaje zamrożona na cały okres budowy
- Żadnych dodatkowych kosztów w trakcie realizacji
- Ochrona przed wzrostami cen na rynku
- Pełna przewidywalność budżetu
Projekt i Rezerwacja
Uruchomienie Maszyn
Odbiór w Fabryce
Pakowanie i Wysyłka
Materiał na Działce
Złożenie Bryły
Stan Deweloperski
Przekazanie Kluczy


Zaufany producent domów szkieletowych
Projektujemy, produkujemy i montujemy domy szkieletowe pod klucz. Pomagamy w formalnościach, dostarczamy fundament, transport i serwis.
- Produkcja w hali fabrycznej zapewnia doskonałą jakość wykonania i ochronę przed warunkami atmosferycznymi.
- Montaż na miejscu trwa zaledwie kilka dni — nie czekasz miesięcy na ukończenie budowy.
Podoba Ci się projekt, ale potrzebujesz zmian?
Dostosujemy układ pomieszczeń i bryłę do Twoich potrzeb. Z naszymi architektami zmienisz projekt tak, by był idealny.
- Dowolna zmiana układu ścian działowych
- Dostosowanie wielkości i rozmieszczenia okien
- Możliwość modyfikacji bryły budynku
- Profesjonalne doradztwo naszych architektów

FAQ — szybkie odpowiedzi
Od zamówienia do odbioru kluczy — realizacja trwa 4-6 miesięcy, montaż na działce do 14 dni.
Modele do 70 m² można postawić na zgłoszenie — pomagamy w całym procesie. Przy większych wymagane jest pozwolenie budowlane.
Od 4 650 zł/m². W zależności od pakietu wykończenia obejmuje on konstrukcję, wykończenie, fundament, instalacje i montaż. Dokładny koszt po wycenie.
Tak — oferujemy kompleksową obsługę. Transport i montaż zapewniamy zawsze. Fundament płytowy to dodatkowy koszt, natomiast w pakiecie All-Inclusive jest on zawarty w cenie. Wymiana gruntu liczona jest zgodnie z faktycznie poniesionymi kosztami.
Tak — współpracujemy z bankami i oferujemy pomoc w uzyskaniu kredytu hipotecznego na nasze domy.


