Pakiety wykończenia
Podane ceny są cenami szacunkowymi. Skontaktuj się z nami po dokładną wycenę.
Parametry budynku
Szczegółowa specyfikacja techniczna modelu
Powierzchnia netto
115.87 m²
Powierzchnia użytkowa
101.63 m²
Powierzchnia zabudowy
78.4 m²
Kubatura
311.37 m³
Wysokość budynku
7.66 m
Kąt nachylenia dachu
35° / 2°
Powierzchnia dachu
97.29 m²
Minimalne wymiary działki
13,36 x 20,06 m
Pokrycie dachu
gont / blacha / blachodachówka / dachówka
Opis
FDPL-Z431 — dom na wąską działkę (2 kondygnacje) Smukła bryła idealna na węższe parcele, duże przeszklenia i spokojne materiały. Dom zaprojektowany oszczędnie w energii — ciepłe przegrody, dobra stolarka i wentylacja z odzyskiem ciepła. Na dachu przewidujemy panele fotowoltaiczne dobrane do Twoich potrzeb, a przy podjeździe/garażu montujemy ładowarkę do auta elektrycznego (wallbox) — komfortowe ładowanie w domu, najlepiej z własnego prądu. Układ: Parter – jasny salon z jadalnią i półotwartą kuchnią, wyjście na taras; wiatrołap, WC i praktyczne zaplecze. Piętro – trzy wygodne sypialnie, rodzinna łazienka i garderoby w komunikacji. Dlaczego Eco Line: niższe koszty użytkowania, przewidywalny komfort, gotowość na elektromobilność i czysta, nowoczesna forma — dopasowana do wąskich działek.
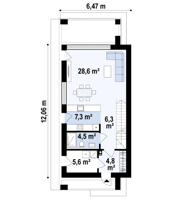
Parter 51,6m²
Sień – 4,8 m² Hol – 6,3 m² Łazienka – 4,5 m² Kuchnia – 7,3 m² Salon + jadalnia – 28,6 m² Pomieszczenie gospodarcze – 0,0 m² / 5,6 m²

Poddasze 50,1m²
Hol – 7,5 m² / 8,0 m² Pokój – 14,1 m² / 15,8 m² Pokój – 11,4 m² / 12,2 m² Pokój – 11,5 m² / 12,4 m² Łazienka – 5,6 m² / 6,4 m² Schody – 0,0 m² / 4,0 m²

Działka
Minimalne wymiary działki szerokość 13,36 m długość 20,06 m Wymiary elewacji frontowej 6,47 m

Bezpieczny model płatności
Inwestycja podzielona na 8 etapów. Kolejną transzę wpłacasz dopiero po zweryfikowaniu efektów poprzedniej. Zero ryzyka.
Gwarancja stałej ceny
Po podpisaniu umowy cena materiałów zostaje zamrożona na cały okres budowy
- Żadnych dodatkowych kosztów w trakcie realizacji
- Ochrona przed wzrostami cen na rynku
- Pełna przewidywalność budżetu
Projekt i Rezerwacja
Uruchomienie Maszyn
Odbiór w Fabryce
Pakowanie i Wysyłka
Materiał na Działce
Złożenie Bryły
Stan Deweloperski
Przekazanie Kluczy


Zaufany producent domów szkieletowych
Projektujemy, produkujemy i montujemy domy szkieletowe pod klucz. Pomagamy w formalnościach, dostarczamy fundament, transport i serwis.
- Produkcja w hali fabrycznej zapewnia doskonałą jakość wykonania i ochronę przed warunkami atmosferycznymi.
- Montaż na miejscu trwa zaledwie kilka dni — nie czekasz miesięcy na ukończenie budowy.
Podoba Ci się projekt, ale potrzebujesz zmian?
Dostosujemy układ pomieszczeń i bryłę do Twoich potrzeb. Z naszymi architektami zmienisz projekt tak, by był idealny.
- Dowolna zmiana układu ścian działowych
- Dostosowanie wielkości i rozmieszczenia okien
- Możliwość modyfikacji bryły budynku
- Profesjonalne doradztwo naszych architektów

FAQ — szybkie odpowiedzi
Od zamówienia do odbioru kluczy — realizacja trwa 4-6 miesięcy, montaż na działce do 14 dni.
Modele do 70 m² można postawić na zgłoszenie — pomagamy w całym procesie. Przy większych wymagane jest pozwolenie budowlane.
Od 4 650 zł/m². W zależności od pakietu wykończenia obejmuje on konstrukcję, wykończenie, fundament, instalacje i montaż. Dokładny koszt po wycenie.
Tak — oferujemy kompleksową obsługę. Transport i montaż zapewniamy zawsze. Fundament płytowy to dodatkowy koszt, natomiast w pakiecie All-Inclusive jest on zawarty w cenie. Wymiana gruntu liczona jest zgodnie z faktycznie poniesionymi kosztami.
Tak — współpracujemy z bankami i oferujemy pomoc w uzyskaniu kredytu hipotecznego na nasze domy.


