Pakiety wykończenia
Podane ceny są cenami szacunkowymi. Skontaktuj się z nami po dokładną wycenę.
Parametry budynku
Szczegółowa specyfikacja techniczna modelu
Powierzchnia netto
293.65 m²
Powierzchnia użytkowa
241.66 m²
Powierzchnia zabudowy
184.7 m²
Kubatura
698.79 m³
Wysokość budynku
8.53 m
Kąt nachylenia dachu
40°
Powierzchnia dachu
284.9 m²
Minimalne wymiary działki
24,39 x 20,49 m
Pokrycie dachu
blachodachówka / dachówka
Wentylacja
mechaniczna (rekuperacja)
Opis
FrameDEV Z46 — dom dwurodzinny z dwoma niezależnymi mieszkaniami Parter mieści dwa osobne lokale z wejściami od frontu, każdy z własnym wyjściem do wydzielonej części ogrodu; program jednego z mieszkań przewiduje pełne zagospodarowanie poddasza. Bryła nawiązuje do dworu polskiego: wysunięty daszek na filarach, elewacje możliwe do wykończenia klinkierem lub kamieniem łamanym. Wnętrze zaplanowano funkcjonalnie i ekonomicznie (zblokowany węzeł sanitarny w pom. gospodarczym). Projekt dostępny także w wariantach — m.in. jako jeden lokal.
Parter 144,0m²
Sień – 3,2 m² Hol + schody – 15,1 m² Salon – 32,3 m² Kuchnia – 15,4 m² WC – 2,2 m² Pomieszczenie gospodarcze – 4,3 m² Sień – 4,6 m² Hol – 9,6 m² Kuchnia – 11,7 m² Spiżarnia – 5,1 m² Salon – 21,8 m² Pokój – 13,2 m² Łazienka – 5,4 m²

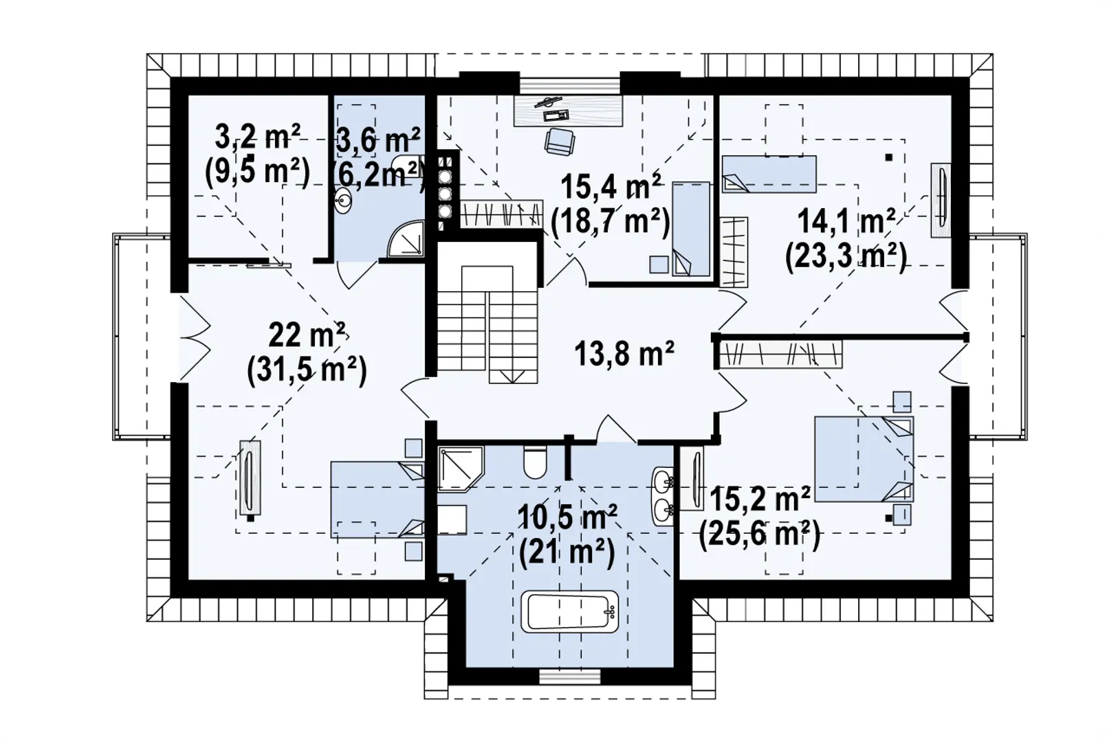
Poddasze 97,7m²
Hol – 13,8 m² Łazienka – 10,5 m² / 21,0 m² Pokój – 15,2 m² / 25,6 m² Pokój – 14,1 m² / 23,3 m² Pokój – 15,4 m² / 18,7 m² Pokój – 22,0 m² / 31,5 m² Garderoba – 3,2 m² / 9,5 m² WC – 3,6 m² / 6,2 m² Balkon – 4,6 m² Balkon – 4,6 m²

Działka
Minimalne wymiary działki szerokość 24,39 m długość 20,49 m Wymiary elewacji frontowej 16,39 m

Bezpieczny model płatności
Inwestycja podzielona na 8 etapów. Kolejną transzę wpłacasz dopiero po zweryfikowaniu efektów poprzedniej. Zero ryzyka.
Gwarancja stałej ceny
Po podpisaniu umowy cena materiałów zostaje zamrożona na cały okres budowy
- Żadnych dodatkowych kosztów w trakcie realizacji
- Ochrona przed wzrostami cen na rynku
- Pełna przewidywalność budżetu
Projekt i Rezerwacja
Uruchomienie Maszyn
Odbiór w Fabryce
Pakowanie i Wysyłka
Materiał na Działce
Złożenie Bryły
Stan Deweloperski
Przekazanie Kluczy


Zaufany producent domów szkieletowych
Projektujemy, produkujemy i montujemy domy szkieletowe pod klucz. Pomagamy w formalnościach, dostarczamy fundament, transport i serwis.
- Produkcja w hali fabrycznej zapewnia doskonałą jakość wykonania i ochronę przed warunkami atmosferycznymi.
- Montaż na miejscu trwa zaledwie kilka dni — nie czekasz miesięcy na ukończenie budowy.
Podoba Ci się projekt, ale potrzebujesz zmian?
Dostosujemy układ pomieszczeń i bryłę do Twoich potrzeb. Z naszymi architektami zmienisz projekt tak, by był idealny.
- Dowolna zmiana układu ścian działowych
- Dostosowanie wielkości i rozmieszczenia okien
- Możliwość modyfikacji bryły budynku
- Profesjonalne doradztwo naszych architektów

FAQ — szybkie odpowiedzi
Od zamówienia do odbioru kluczy — realizacja trwa 4-6 miesięcy, montaż na działce do 14 dni.
Modele do 70 m² można postawić na zgłoszenie — pomagamy w całym procesie. Przy większych wymagane jest pozwolenie budowlane.
Od 4 650 zł/m². W zależności od pakietu wykończenia obejmuje on konstrukcję, wykończenie, fundament, instalacje i montaż. Dokładny koszt po wycenie.
Tak — oferujemy kompleksową obsługę. Transport i montaż zapewniamy zawsze. Fundament płytowy to dodatkowy koszt, natomiast w pakiecie All-Inclusive jest on zawarty w cenie. Wymiana gruntu liczona jest zgodnie z faktycznie poniesionymi kosztami.
Tak — współpracujemy z bankami i oferujemy pomoc w uzyskaniu kredytu hipotecznego na nasze domy.


