Pakiety wykończenia
Podane ceny są cenami szacunkowymi. Skontaktuj się z nami po dokładną wycenę.
Parametry budynku
Szczegółowa specyfikacja techniczna modelu
Powierzchnia netto
118.22 m²
Powierzchnia użytkowa
100.33 m²
Powierzchnia zabudowy
84.7 m²
Kubatura
319.86 m³
Wysokość budynku
8.9 m
Kąt nachylenia dachu
35°
Powierzchnia dachu
110.75 m²
Minimalne wymiary działki
14,26 x 20,36 m
Pokrycie dachu
dachówka
Wentylacja
mechaniczna (rekuperacja)
Opis
ZB26 to współczesny dom w zabudowie bliźniaczej z dachem dwuspadowym i niewielkimi okapami. Od frontu zaprojektowano betonowe zadaszenia chroniące zarówno wejście, jak i taras od strony ogrodu. Elewacja w ciemnej cegle klinkierowej z akcentami czarnego betonu nadaje bryle elegancji i nowoczesnego charakteru. Modna, stonowana kolorystyka oraz powierzchnia nieprzekraczająca 110 m² czynią z ZB26 praktyczną propozycję na wąskie działki lub jako bliźniak. Na parterze, pod centralnie umieszczonym zadaszeniem, znajduje się wejście prowadzące do strefy dziennej. Po lewej umieszczono niewielką łazienkę, dalej kuchnię z wyspą — idealną na szybkie śniadanie lub popołudniową kawę. Salon z jadalnią ulokowano od ogrodu; duże przeszklenia do podłogi łączą wnętrze z tarasem i zapewniają obfite doświetlenie, a kominek podnosi komfort zimą. Dodatkowy gabinet może pełnić funkcję pokoju gościnnego. Na poddaszu zaplanowano trzy ustawne sypialnie, z których jedna posiada własną garderobę. Przestronna łazienka mieści wannę, prysznic oraz pralkę. Praktyczny schowek dostępny z holu ułatwia przechowywanie tekstyliów i sprzętów. Projekt dedykowany jest inwestorom poszukującym zwartej, eleganckiej zabudowy bliźniaczej lub domu wolnostojącego na wąską parcelę.
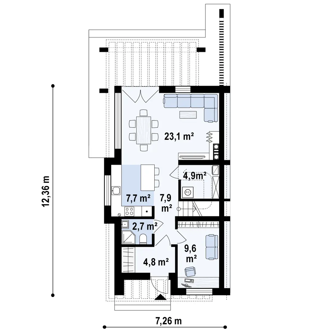
Parter 55,8m²
Sień – 4,8 m² Hol + schody – 7,9 m² Łazienka – 2,7 m² Gabinet – 9,6 m² Kuchnia – 7,7 m² Salon + jadalnia – 23,1 m² Pomieszczenie gospodarcze – 4,9 m²

Poddasze 0,0m²
Hol – 5,2 m² Schowek – 1,1 m² Pokój – 10,1 m² / 14,7 m² Garderoba – 4,4 m² / 6,3 m² Pokój – 9,2 m² Pokój – 8,2 m² / 12,2 m² Łazienka – 6,4 m² / 8,9 m²

Działka
Minimalne wymiary działki szerokość 14,26 m długość 20,36 m Wymiary elewacji frontowej 7,26 m

Bezpieczny model płatności
Inwestycja podzielona na 8 etapów. Kolejną transzę wpłacasz dopiero po zweryfikowaniu efektów poprzedniej. Zero ryzyka.
Gwarancja stałej ceny
Po podpisaniu umowy cena materiałów zostaje zamrożona na cały okres budowy
- Żadnych dodatkowych kosztów w trakcie realizacji
- Ochrona przed wzrostami cen na rynku
- Pełna przewidywalność budżetu
Projekt i Rezerwacja
Uruchomienie Maszyn
Odbiór w Fabryce
Pakowanie i Wysyłka
Materiał na Działce
Złożenie Bryły
Stan Deweloperski
Przekazanie Kluczy


Zaufany producent domów szkieletowych
Projektujemy, produkujemy i montujemy domy szkieletowe pod klucz. Pomagamy w formalnościach, dostarczamy fundament, transport i serwis.
- Produkcja w hali fabrycznej zapewnia doskonałą jakość wykonania i ochronę przed warunkami atmosferycznymi.
- Montaż na miejscu trwa zaledwie kilka dni — nie czekasz miesięcy na ukończenie budowy.
Podoba Ci się projekt, ale potrzebujesz zmian?
Dostosujemy układ pomieszczeń i bryłę do Twoich potrzeb. Z naszymi architektami zmienisz projekt tak, by był idealny.
- Dowolna zmiana układu ścian działowych
- Dostosowanie wielkości i rozmieszczenia okien
- Możliwość modyfikacji bryły budynku
- Profesjonalne doradztwo naszych architektów

FAQ — szybkie odpowiedzi
Od zamówienia do odbioru kluczy — realizacja trwa 4-6 miesięcy, montaż na działce do 14 dni.
Modele do 70 m² można postawić na zgłoszenie — pomagamy w całym procesie. Przy większych wymagane jest pozwolenie budowlane.
Od 4 650 zł/m². W zależności od pakietu wykończenia obejmuje on konstrukcję, wykończenie, fundament, instalacje i montaż. Dokładny koszt po wycenie.
Tak — oferujemy kompleksową obsługę. Transport i montaż zapewniamy zawsze. Fundament płytowy to dodatkowy koszt, natomiast w pakiecie All-Inclusive jest on zawarty w cenie. Wymiana gruntu liczona jest zgodnie z faktycznie poniesionymi kosztami.
Tak — współpracujemy z bankami i oferujemy pomoc w uzyskaniu kredytu hipotecznego na nasze domy.


