Pakiety wykończenia
Podane ceny są cenami szacunkowymi. Tarasy nie są wliczone w cenę.
Parametry budynku
Szczegółowa specyfikacja techniczna modelu
Powierzchnia netto
256 m²
Powierzchnia użytkowa
162 m²
Powierzchnia zabudowy
144 m²
Powierzchnia garażu
20 m²
Kubatura
949 m³
Wysokość budynku
7.82 m
Kąt nachylenia dachu
35°
Powierzchnia dachu
175 m²
Minimalne wymiary działki
17,42 x 24,79 m
Pokrycie dachu
tradycyjna więźba dachowa pokryta płytkami włókno-cementowymi, okna dachowe FAKRO
Instalacja grzewcza
gazowe - piec kondensacyjny oraz ogrzewanie podłogowe w całym domu, dodatkowo w łazienkach tradycyjne grzejniki typu "ręcznikowiec"
Wentylacja
mechaniczna z rekuperacją
Parter 90 m
RZUT PARTERU POWIERZCHNIA: 86,60 m² (89,76 m²) 1. WIATROŁAP – 3,87 m² 2. GARDEROBA – 3,50 m² 3. KOMUNIKACJA – 6,89 m² 4. GABINET – 8,62 m² 5. ŁAZIENKA – 3,57 m² 6. SCHOWEK – 2,20 m² (5,25 m²) 7. STREFA DZIENNA – 53,89 m² 8. SPIŻARNIA – 1,41 m² (1,52 m²) 9. KOTŁOWNIA – 2,65 m² G. GARAŻ – 20,24 m² T. TARAS NAZIEMNY – 26,15 m² (18,85 m²)

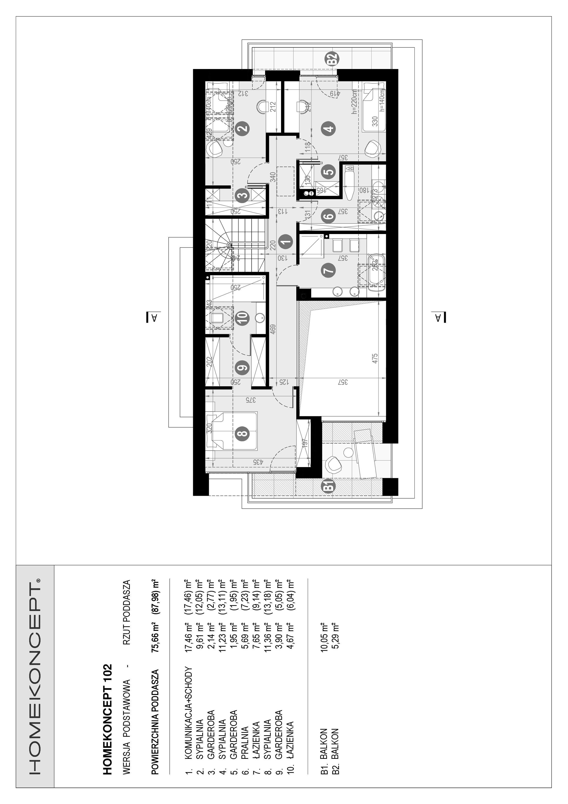
Poddasze 88 m
RZUT PODDASZA POWIERZCHNIA: 75,66 m² (87,98 m²) 1. KOMUNIKACJA + SCHODY – 17,46 m² 2. SYPIALNIA – 9,61 m² (12,05 m²) 3. GARDEROBA – 2,14 m² (2,77 m²) 4. SYPIALNIA – 11,23 m² (13,11 m²) 5. GARDEROBA – 1,95 m² 6. PRALNIA – 5,69 m² (7,23 m²) 7. ŁAZIENKA – 7,65 m² (9,14 m²) 8. SYPIALNIA – 11,36 m² (13,18 m²) 9. GARDEROBA – 3,90 m² (5,05 m²) 10. ŁAZIENKA – 4,67 m² (6,04 m²) B1. BALKON – 10,05 m² B2. BALKON – 5,29 m²

Bezpieczny model płatności
Inwestycja podzielona na 8 etapów. Kolejną transzę wpłacasz dopiero po zweryfikowaniu efektów poprzedniej. Zero ryzyka.
Gwarancja stałej ceny
Po podpisaniu umowy cena materiałów zostaje zamrożona na cały okres budowy
- Żadnych dodatkowych kosztów w trakcie realizacji
- Ochrona przed wzrostami cen na rynku
- Pełna przewidywalność budżetu
Projekt i Rezerwacja
Uruchomienie Maszyn
Odbiór w Fabryce
Pakowanie i Wysyłka
Materiał na Działce
Złożenie Bryły
Stan Deweloperski
Przekazanie Kluczy


Zaufany producent domów szkieletowych
Projektujemy, produkujemy i montujemy domy szkieletowe pod klucz. Pomagamy w formalnościach, dostarczamy fundament, transport i serwis.
- Produkcja w hali fabrycznej zapewnia doskonałą jakość wykonania i ochronę przed warunkami atmosferycznymi.
- Montaż na miejscu trwa zaledwie kilka dni — nie czekasz miesięcy na ukończenie budowy.
Podoba Ci się projekt, ale potrzebujesz zmian?
Dostosujemy układ pomieszczeń i bryłę do Twoich potrzeb. Z naszymi architektami zmienisz projekt tak, by był idealny.
- Dowolna zmiana układu ścian działowych
- Dostosowanie wielkości i rozmieszczenia okien
- Możliwość modyfikacji bryły budynku
- Profesjonalne doradztwo naszych architektów

FAQ — szybkie odpowiedzi
Od zamówienia do odbioru kluczy — realizacja trwa 4-6 miesięcy, montaż na działce do 14 dni.
Modele do 70 m² można postawić na zgłoszenie — pomagamy w całym procesie. Przy większych wymagane jest pozwolenie budowlane.
Od 4 650 zł/m². W zależności od pakietu wykończenia obejmuje on konstrukcję, wykończenie, fundament, instalacje i montaż. Dokładny koszt po wycenie.
Tak — oferujemy kompleksową obsługę. Transport i montaż zapewniamy zawsze. Fundament płytowy to dodatkowy koszt, natomiast w pakiecie All-Inclusive jest on zawarty w cenie. Wymiana gruntu liczona jest zgodnie z faktycznie poniesionymi kosztami.
Tak — współpracujemy z bankami i oferujemy pomoc w uzyskaniu kredytu hipotecznego na nasze domy.


