Pakiety wykończenia
Podane ceny są cenami szacunkowymi. Tarasy nie są wliczone w cenę.
Parametry budynku
Szczegółowa specyfikacja techniczna modelu
Powierzchnia netto
189 m²
Powierzchnia użytkowa
135 m²
Powierzchnia zabudowy
119 m²
Kubatura
707 m³
Wysokość budynku
7.26 m
Kąt nachylenia dachu
35°
Powierzchnia dachu
158 m²
Minimalne wymiary działki
22,95 x 15,30 m
Pokrycie dachu
tradycyjna więźba dachowa pokryta blachą na rąbek, okna dachowe FAKRO
Instalacja grzewcza
powietrzna pompa ciepła, ogrzewanie podłogowe w całym domu, w łazienkach dodatkowo tradycyjne grzejniki typu ręcznikowiec
Wentylacja
mechaniczna z rekuperacją
Parter 87 m
RZUT PARTERU POWIERZCHNIA: 85,79 m² (87,16 m²) 1. WIATROŁAP – 3,73 m² 2. GARDEROBA – 4,51 m² 3. POM. GOSPODARCZE – 3,45 m² 4. KOMUNIKACJA – 8,68 m² (9,39 m²) 5. GABINET – 12,38 m² 6. ŁAZIENKA – 4,47 m² 7. SPIŻARNIA – 2,74 m² 8. STREFA DZIENNA – 45,83 m² (46,49 m²) T1. TARAS – 33,36 m² (12,71 m²) T2. TARAS – 20,76 m²

Poddasze 57 m
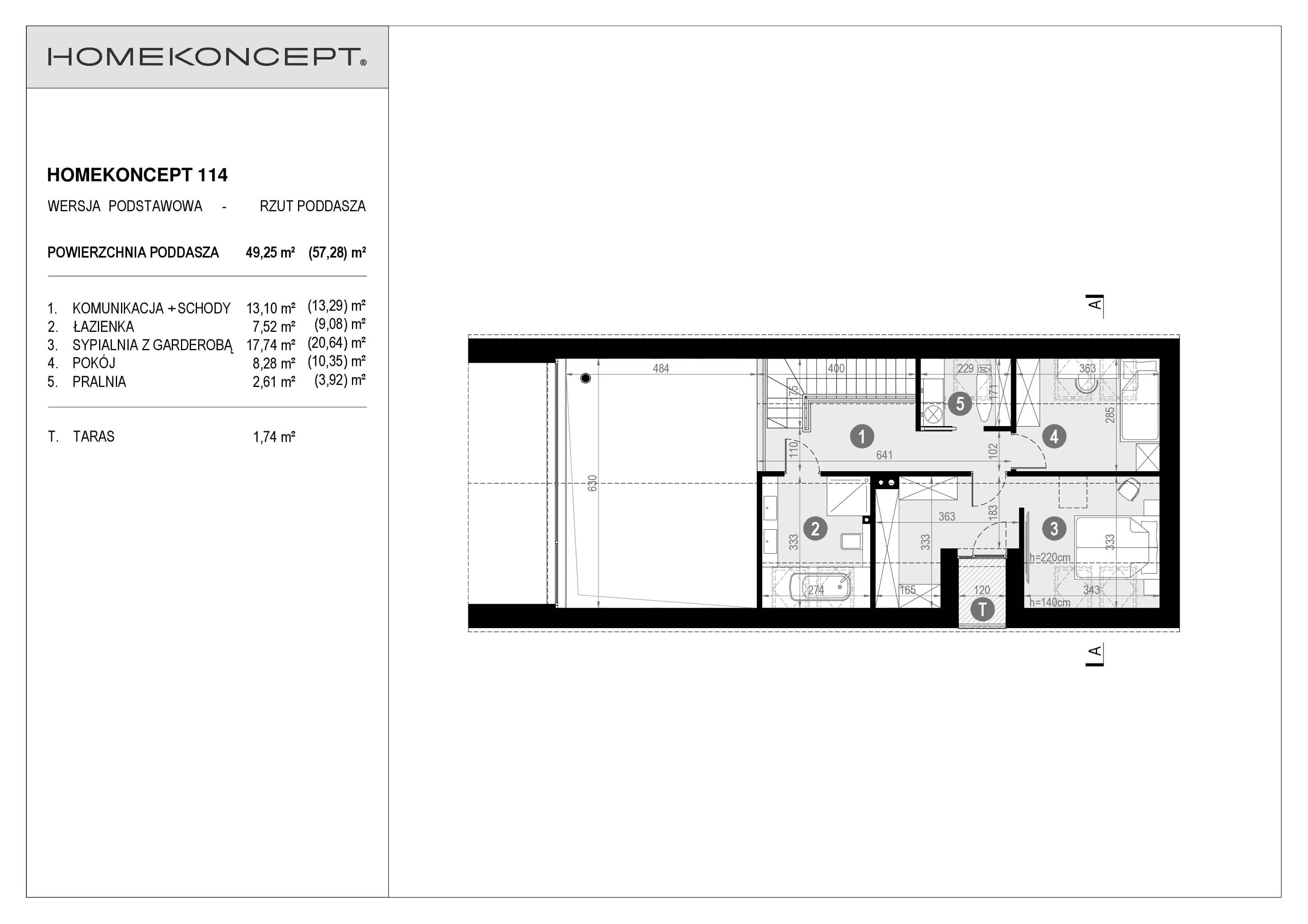
RZUT PODDASZA POWIERZCHNIA: 49,25 m² (57,28 m²) 1. KOMUNIKACJA + SCHODY – 13,10 m² (13,29 m²) 2. ŁAZIENKA – 7,52 m² (9,08 m²) 3. SYPIALNIA Z GARDEROBĄ – 17,74 m² (20,64 m²) 4. POKÓJ – 8,28 m² (10,35 m²) 5. PRALNIA – 2,61 m² (3,92 m²) T. TARAS – 1,74 m²

Bezpieczny model płatności
Inwestycja podzielona na 8 etapów. Kolejną transzę wpłacasz dopiero po zweryfikowaniu efektów poprzedniej. Zero ryzyka.
Gwarancja stałej ceny
Po podpisaniu umowy cena materiałów zostaje zamrożona na cały okres budowy
- Żadnych dodatkowych kosztów w trakcie realizacji
- Ochrona przed wzrostami cen na rynku
- Pełna przewidywalność budżetu
Projekt i Rezerwacja
Uruchomienie Maszyn
Odbiór w Fabryce
Pakowanie i Wysyłka
Materiał na Działce
Złożenie Bryły
Stan Deweloperski
Przekazanie Kluczy


Zaufany producent domów szkieletowych
Projektujemy, produkujemy i montujemy domy szkieletowe pod klucz. Pomagamy w formalnościach, dostarczamy fundament, transport i serwis.
- Produkcja w hali fabrycznej zapewnia doskonałą jakość wykonania i ochronę przed warunkami atmosferycznymi.
- Montaż na miejscu trwa zaledwie kilka dni — nie czekasz miesięcy na ukończenie budowy.
Podoba Ci się projekt, ale potrzebujesz zmian?
Dostosujemy układ pomieszczeń i bryłę do Twoich potrzeb. Z naszymi architektami zmienisz projekt tak, by był idealny.
- Dowolna zmiana układu ścian działowych
- Dostosowanie wielkości i rozmieszczenia okien
- Możliwość modyfikacji bryły budynku
- Profesjonalne doradztwo naszych architektów

FAQ — szybkie odpowiedzi
Od zamówienia do odbioru kluczy — realizacja trwa 4-6 miesięcy, montaż na działce do 14 dni.
Modele do 70 m² można postawić na zgłoszenie — pomagamy w całym procesie. Przy większych wymagane jest pozwolenie budowlane.
Od 4 650 zł/m². W zależności od pakietu wykończenia obejmuje on konstrukcję, wykończenie, fundament, instalacje i montaż. Dokładny koszt po wycenie.
Tak — oferujemy kompleksową obsługę. Transport i montaż zapewniamy zawsze. Fundament płytowy to dodatkowy koszt, natomiast w pakiecie All-Inclusive jest on zawarty w cenie. Wymiana gruntu liczona jest zgodnie z faktycznie poniesionymi kosztami.
Tak — współpracujemy z bankami i oferujemy pomoc w uzyskaniu kredytu hipotecznego na nasze domy.


