Pakiety wykończenia
Podane ceny są cenami szacunkowymi. Skontaktuj się z nami po dokładną wycenę.
Parametry budynku
Szczegółowa specyfikacja techniczna modelu
Powierzchnia netto
240 m²
Powierzchnia użytkowa
144 m²
Powierzchnia zabudowy
161 m²
Powierzchnia garażu
35 m²
Kubatura
1044 m³
Wysokość budynku
9.06 m
Kąt nachylenia dachu
25°
Powierzchnia dachu
255 m²
Minimalne wymiary działki
20,95 x 23,65 m
Pokrycie dachu
tradycyjna więźba dachowa pokryta dachówką ceramiczną lub cementową swissporTON
Instalacja grzewcza
gazowe - piec kondensacyjny oraz ogrzewanie podłogowe w wiatrołapie, kuchni, jadalni, salonie, łazienkach, komunikacji, garderobie, pralni, tradycyjne grzejniki w pozostałych pomieszczeniach
Wentylacja
mechaniczna z rekuperacją
Parter 74 m
RZUT PARTERU POWIERZCHNIA: 74,47 m² 1. WIATROŁAP – 4,52 m² 2. KOMUNIKACJA – 11,13 m² 3. GARDEROBA – 6,02 m² 4. ŁAZIENKA – 2,40 m² 5. SALON/JADALNIA – 34,98 m² 6. KUCHNIA – 8,37 m² 7. SPIŻARNIA – 2,30 m² 8. KOTŁOWNIA/PRALNIA – 4,75 m² G. GARAŻ – 35,40 m² T1. TARAS – 97,21 m²

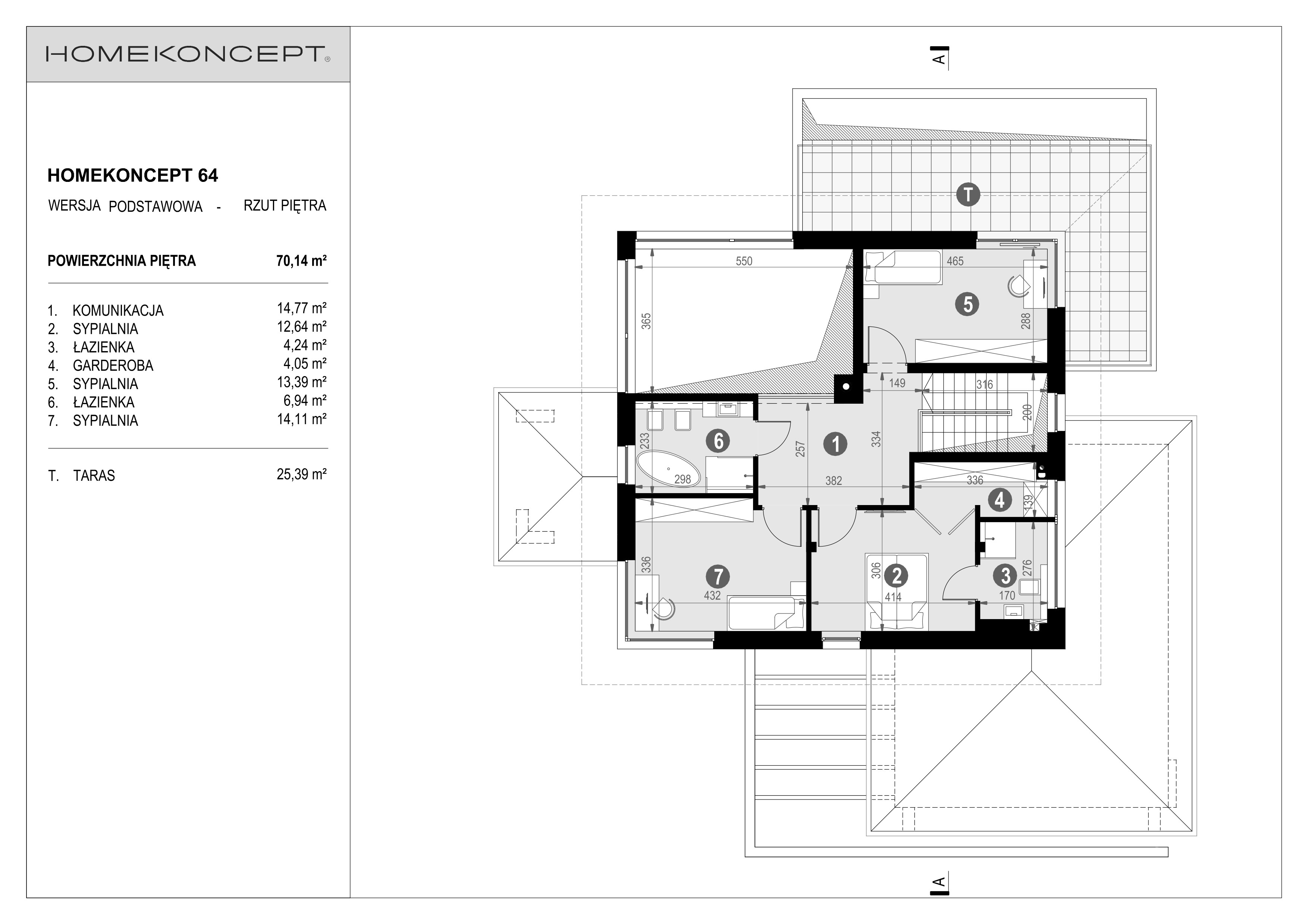
Piętro 70 m
RZUT PIĘTRA POWIERZCHNIA: 70,14 m² 1. KOMUNIKACJA – 14,77 m² 2. SYPIALNIA – 12,64 m² 3. ŁAZIENKA – 4,24 m² 4. GARDEROBA – 4,05 m² 5. SYPIALNIA – 13,39 m² 6. ŁAZIENKA – 6,94 m² 7. SYPIALNIA – 14,11 m² T. TARAS – 25,39 m²

Bezpieczny model płatności
Inwestycja podzielona na 8 etapów. Kolejną transzę wpłacasz dopiero po zweryfikowaniu efektów poprzedniej. Zero ryzyka.
Gwarancja stałej ceny
Po podpisaniu umowy cena materiałów zostaje zamrożona na cały okres budowy
- Żadnych dodatkowych kosztów w trakcie realizacji
- Ochrona przed wzrostami cen na rynku
- Pełna przewidywalność budżetu
Projekt i Rezerwacja
Uruchomienie Maszyn
Odbiór w Fabryce
Pakowanie i Wysyłka
Materiał na Działce
Złożenie Bryły
Stan Deweloperski
Przekazanie Kluczy


Zaufany producent domów szkieletowych
Projektujemy, produkujemy i montujemy domy szkieletowe pod klucz. Pomagamy w formalnościach, dostarczamy fundament, transport i serwis.
- Produkcja w hali fabrycznej zapewnia doskonałą jakość wykonania i ochronę przed warunkami atmosferycznymi.
- Montaż na miejscu trwa zaledwie kilka dni — nie czekasz miesięcy na ukończenie budowy.
Podoba Ci się projekt, ale potrzebujesz zmian?
Dostosujemy układ pomieszczeń i bryłę do Twoich potrzeb. Z naszymi architektami zmienisz projekt tak, by był idealny.
- Dowolna zmiana układu ścian działowych
- Dostosowanie wielkości i rozmieszczenia okien
- Możliwość modyfikacji bryły budynku
- Profesjonalne doradztwo naszych architektów

FAQ — szybkie odpowiedzi
Od zamówienia do odbioru kluczy — realizacja trwa 4-6 miesięcy, montaż na działce do 14 dni.
Modele do 70 m² można postawić na zgłoszenie — pomagamy w całym procesie. Przy większych wymagane jest pozwolenie budowlane.
Od 4 650 zł/m². W zależności od pakietu wykończenia obejmuje on konstrukcję, wykończenie, fundament, instalacje i montaż. Dokładny koszt po wycenie.
Tak — oferujemy kompleksową obsługę. Transport i montaż zapewniamy zawsze. Fundament płytowy to dodatkowy koszt, natomiast w pakiecie All-Inclusive jest on zawarty w cenie. Wymiana gruntu liczona jest zgodnie z faktycznie poniesionymi kosztami.
Tak — współpracujemy z bankami i oferujemy pomoc w uzyskaniu kredytu hipotecznego na nasze domy.


