Pakiety wykończenia
Podane ceny są cenami szacunkowymi. Skontaktuj się z nami po dokładną wycenę.
Parametry budynku
Szczegółowa specyfikacja techniczna modelu
Powierzchnia netto
211 m²
Powierzchnia użytkowa
144 m²
Powierzchnia zabudowy
139 m²
Kubatura
747 m³
Wysokość budynku
6.77 m
Kąt nachylenia dachu
35°
Powierzchnia dachu
185 m²
Minimalne wymiary działki
21,39 x 25,34 m
Pokrycie dachu
tradycyjna więźba dachowa pokryta dachówką ceramiczną lub cementową swissporTON, okna dachowe FAKRO
Instalacja grzewcza
gazowe - wspomagane przez kominek, ogrzewanie podłogowe w salonie, kuchni, jadalni, komunikacji, łazienkach oraz tradycyjne grzejniki w pozostałych pomieszczeniach
Wentylacja
grawitacyjna
Parter 108 m
RZUT PARTERU POWIERZCHNIA: 106,04 m² (107,88 m²) 1. WIATROŁAP – 5,42 m² 2. KOMUNIKACJA – 11,32 m² 3. ŁAZIENKA/SAUNA – 14,35 m² 4. SALON/JADALNIA/KUCHNIA – 43,12 m² 5. SYPIALNIA – 13,33 m² 6. TOALETA – 1,55 m² 7. KOTŁOWNIA/POM.GOSP. – 3,98 m² (5,82 m²) 8. SYPIALNIA – 12,97 m² T. TARAS – 127,05 m²

55 m
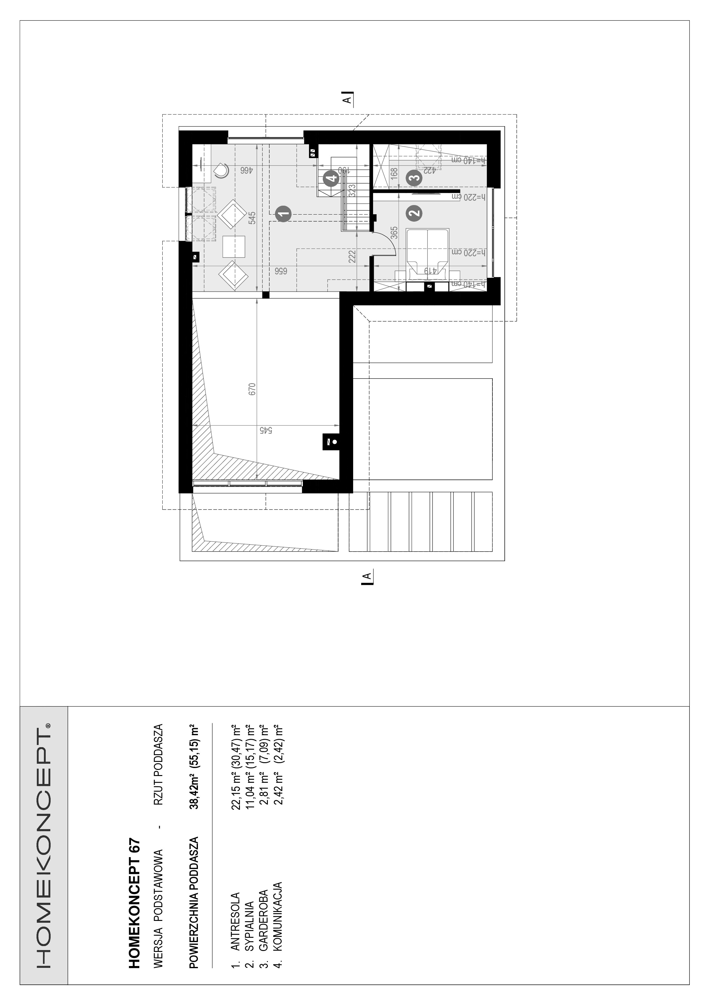
RZUT PODDASZA POWIERZCHNIA: 38,42 m² (55,15 m²) 1. ANTRESOLA – 22,15 m² (30,47 m²) 2. SYPIALNIA – 11,04 m² (15,17 m²) 3. GARDEROBA – 2,81 m² (7,09 m²) 4. KOMUNIKACJA – 2,42 m²

Bezpieczny model płatności
Inwestycja podzielona na 8 etapów. Kolejną transzę wpłacasz dopiero po zweryfikowaniu efektów poprzedniej. Zero ryzyka.
Gwarancja stałej ceny
Po podpisaniu umowy cena materiałów zostaje zamrożona na cały okres budowy
- Żadnych dodatkowych kosztów w trakcie realizacji
- Ochrona przed wzrostami cen na rynku
- Pełna przewidywalność budżetu
Projekt i Rezerwacja
Uruchomienie Maszyn
Odbiór w Fabryce
Pakowanie i Wysyłka
Materiał na Działce
Złożenie Bryły
Stan Deweloperski
Przekazanie Kluczy


Zaufany producent domów szkieletowych
Projektujemy, produkujemy i montujemy domy szkieletowe pod klucz. Pomagamy w formalnościach, dostarczamy fundament, transport i serwis.
- Produkcja w hali fabrycznej zapewnia doskonałą jakość wykonania i ochronę przed warunkami atmosferycznymi.
- Montaż na miejscu trwa zaledwie kilka dni — nie czekasz miesięcy na ukończenie budowy.
Podoba Ci się projekt, ale potrzebujesz zmian?
Dostosujemy układ pomieszczeń i bryłę do Twoich potrzeb. Z naszymi architektami zmienisz projekt tak, by był idealny.
- Dowolna zmiana układu ścian działowych
- Dostosowanie wielkości i rozmieszczenia okien
- Możliwość modyfikacji bryły budynku
- Profesjonalne doradztwo naszych architektów

FAQ — szybkie odpowiedzi
Od zamówienia do odbioru kluczy — realizacja trwa 4-6 miesięcy, montaż na działce do 14 dni.
Modele do 70 m² można postawić na zgłoszenie — pomagamy w całym procesie. Przy większych wymagane jest pozwolenie budowlane.
Od 4 650 zł/m². W zależności od pakietu wykończenia obejmuje on konstrukcję, wykończenie, fundament, instalacje i montaż. Dokładny koszt po wycenie.
Tak — oferujemy kompleksową obsługę. Transport i montaż zapewniamy zawsze. Fundament płytowy to dodatkowy koszt, natomiast w pakiecie All-Inclusive jest on zawarty w cenie. Wymiana gruntu liczona jest zgodnie z faktycznie poniesionymi kosztami.
Tak — współpracujemy z bankami i oferujemy pomoc w uzyskaniu kredytu hipotecznego na nasze domy.


