Pakiety wykończenia
Podane ceny są cenami szacunkowymi. Skontaktuj się z nami po dokładną wycenę.
Parametry budynku
Szczegółowa specyfikacja techniczna modelu
Powierzchnia netto
176 m²
Powierzchnia użytkowa
103 m²
Powierzchnia zabudowy
177 m²
Powierzchnia garażu
36 m²
Kubatura
862 m³
Wysokość budynku
6.75 m
Kąt nachylenia dachu
35°
Powierzchnia dachu
159 m²
Minimalne wymiary działki
24,87 x 24,94 m
Pokrycie dachu
tradycyjna więźba dachowa pokryta blachą tytanowo-cynkową
Instalacja grzewcza
gazowe - piec kondensacyjny oraz ogrzewanie podłogowe w salonie, jadalni, kuchni, łazienkach, komunikacji i wiatrołapie, tradycyjne grzejniki/grzejniki kanałowe w pozostałych pomieszczeniach
Wentylacja
mechaniczna z rekuperacją
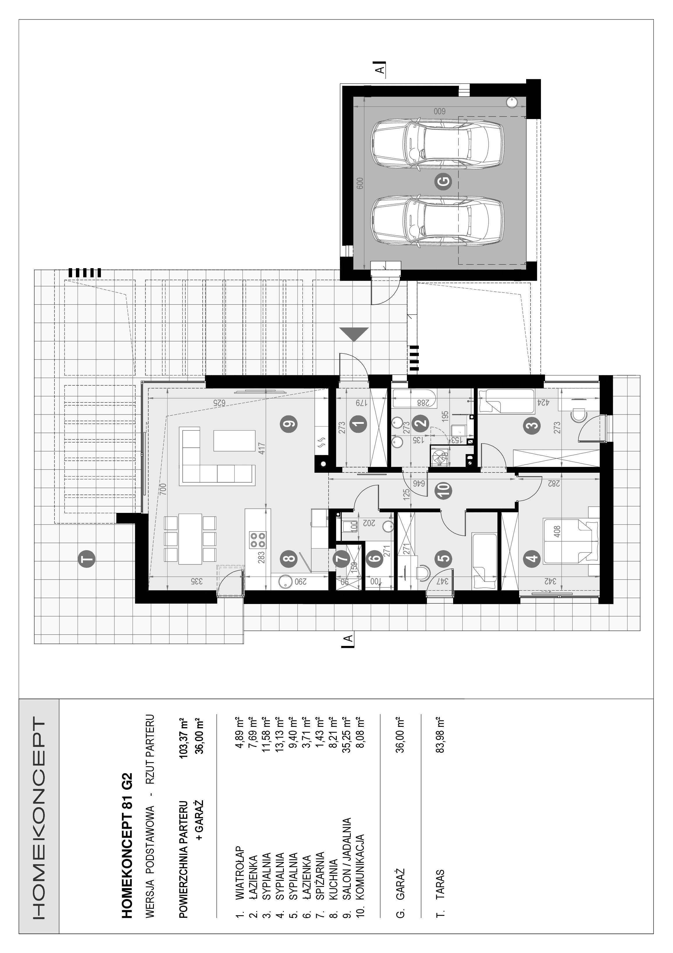
Parter 103 m
RZUT PARTERU POWIERZCHNIA: 103,37 m² 1. WIATROŁAP – 4,89 m² 2. ŁAZIENKA – 7,69 m² 3. SYPIALNIA – 11,58 m² 4. SYPIALNIA – 13,13 m² 5. SYPIALNIA – 9,40 m² 6. ŁAZIENKA – 3,71 m² 7. SPIŻARNIA – 1,43 m² 8. KUCHNIA – 8,21 m² 9. SALON/JADALNIA – 35,25 m² 10. KOMUNIKACJA – 8,08 m² G. GARAŻ – 36,00 m² T. TARAS – 83,98 m²

Bezpieczny model płatności
Inwestycja podzielona na 8 etapów. Kolejną transzę wpłacasz dopiero po zweryfikowaniu efektów poprzedniej. Zero ryzyka.
Gwarancja stałej ceny
Po podpisaniu umowy cena materiałów zostaje zamrożona na cały okres budowy
- Żadnych dodatkowych kosztów w trakcie realizacji
- Ochrona przed wzrostami cen na rynku
- Pełna przewidywalność budżetu
Projekt i Rezerwacja
Uruchomienie Maszyn
Odbiór w Fabryce
Pakowanie i Wysyłka
Materiał na Działce
Złożenie Bryły
Stan Deweloperski
Przekazanie Kluczy


Zaufany producent domów szkieletowych
Projektujemy, produkujemy i montujemy domy szkieletowe pod klucz. Pomagamy w formalnościach, dostarczamy fundament, transport i serwis.
- Produkcja w hali fabrycznej zapewnia doskonałą jakość wykonania i ochronę przed warunkami atmosferycznymi.
- Montaż na miejscu trwa zaledwie kilka dni — nie czekasz miesięcy na ukończenie budowy.
Podoba Ci się projekt, ale potrzebujesz zmian?
Dostosujemy układ pomieszczeń i bryłę do Twoich potrzeb. Z naszymi architektami zmienisz projekt tak, by był idealny.
- Dowolna zmiana układu ścian działowych
- Dostosowanie wielkości i rozmieszczenia okien
- Możliwość modyfikacji bryły budynku
- Profesjonalne doradztwo naszych architektów

FAQ — szybkie odpowiedzi
Od zamówienia do odbioru kluczy — realizacja trwa 4-6 miesięcy, montaż na działce do 14 dni.
Modele do 70 m² można postawić na zgłoszenie — pomagamy w całym procesie. Przy większych wymagane jest pozwolenie budowlane.
Od 4 650 zł/m². W zależności od pakietu wykończenia obejmuje on konstrukcję, wykończenie, fundament, instalacje i montaż. Dokładny koszt po wycenie.
Tak — oferujemy kompleksową obsługę. Transport i montaż zapewniamy zawsze. Fundament płytowy to dodatkowy koszt, natomiast w pakiecie All-Inclusive jest on zawarty w cenie. Wymiana gruntu liczona jest zgodnie z faktycznie poniesionymi kosztami.
Tak — współpracujemy z bankami i oferujemy pomoc w uzyskaniu kredytu hipotecznego na nasze domy.


