Pakiety wykończenia
Podane ceny są cenami szacunkowymi. Skontaktuj się z nami po dokładną wycenę.
Parametry budynku
Szczegółowa specyfikacja techniczna modelu
Powierzchnia netto
245 m²
Powierzchnia użytkowa
133 m²
Powierzchnia zabudowy
165 m²
Powierzchnia garażu
41 m²
Kubatura
842 m³
Wysokość budynku
7.24 m
Kąt nachylenia dachu
35°
Powierzchnia dachu
124 m²
Minimalne wymiary działki
29,62 x 15,71 m
Pokrycie dachu
dwuspadowy; tradycyjna więźba dachowa pokryta płytami włókno-cementowymi, stropodach kryty membraną EPDM
Instalacja grzewcza
gazowe - piec kondensacyjny; ogrzewanie podłogowe w całym domu poza kotłownią; w kotłowni tradycyjny grzejnik, w łazienkach dodatkowo grzejnik typu ręcznikowiec
Wentylacja
mechaniczna z rekuperacją
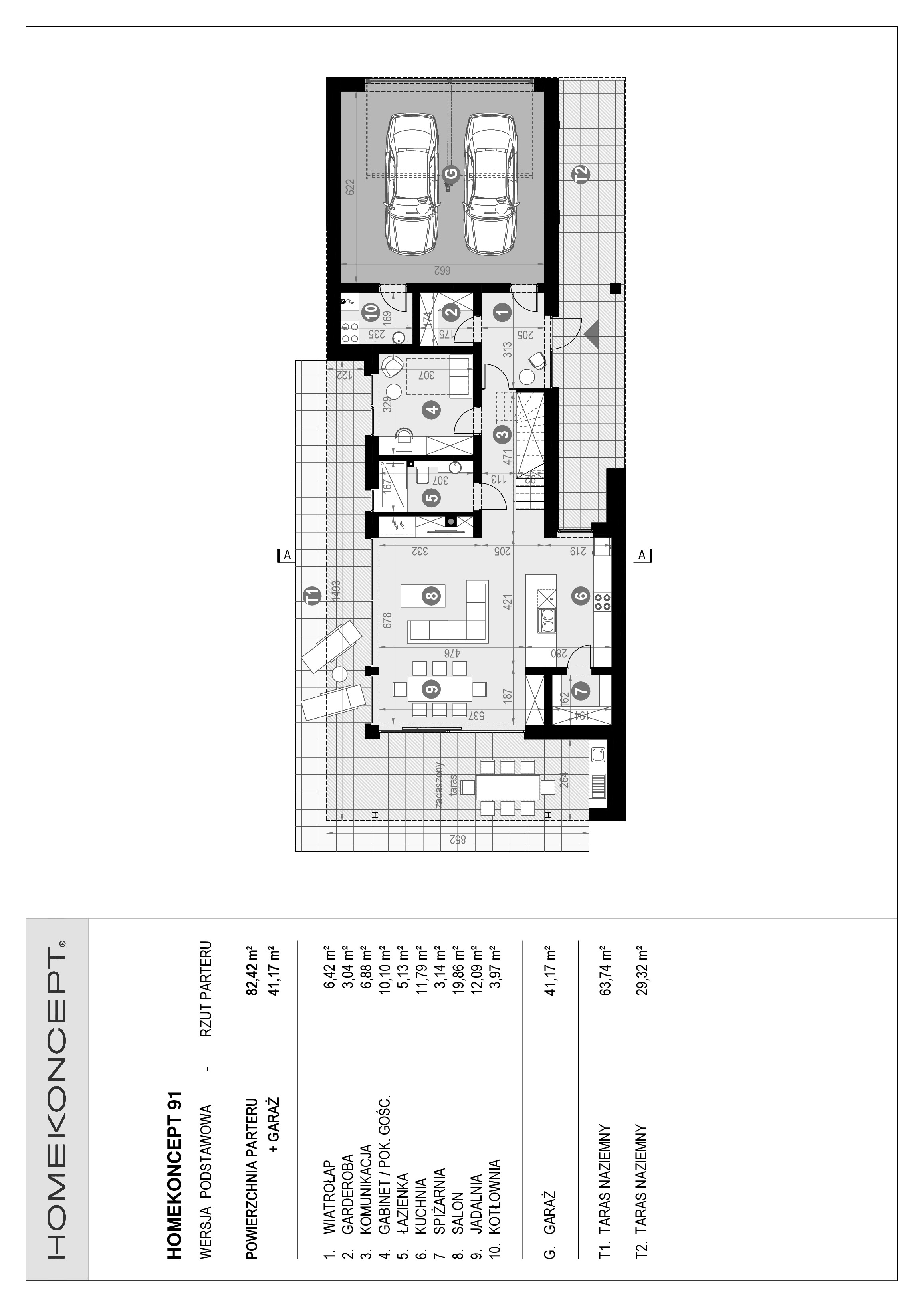
Parter 82 m
RZUT PARTERU POWIERZCHNIA: 82,42 m² 1. WIATROŁAP – 6,42 m² 2. GARDEROBA – 3,04 m² 3. KOMUNIKACJA – 6,88 m² 4. GABINET/POKÓJ GOŚCINNY – 10,10 m² 5. ŁAZIENKA – 5,13 m² 6. KUCHNIA – 11,79 m² 7. SPIŻARNIA – 3,14 m² 8. SALON – 19,86 m² 9. JADALNIA – 12,09 m² 10. KOTŁOWNIA – 3,97 m² G. GARAŻ – 41,17 m² T1. TARAS – 63,74 m² T2. TARAS – 29,32 m²

Poddasze 62 m
RZUT PODDASZA POWIERZCHNIA: 50,73 m² (62,09 m²) 1. KOMUNIKACJA – 11,41 m² (11,52 m²) 2. PRALNIA – 1,46 m² (2,41 m²) 3. SYPIALNIA – 13,32 m² (16,81 m²) 4. GARDEROBA – 4,00 m² (5,17 m²) 5. ŁAZIENKA – 5,94 m² (7,76 m²) 6. SYPIALNIA – 14,60 m² (18,42 m²) T1. TARAS – 16,91 m² T2. TARAS – 16,91 m²

Bezpieczny model płatności
Inwestycja podzielona na 8 etapów. Kolejną transzę wpłacasz dopiero po zweryfikowaniu efektów poprzedniej. Zero ryzyka.
Gwarancja stałej ceny
Po podpisaniu umowy cena materiałów zostaje zamrożona na cały okres budowy
- Żadnych dodatkowych kosztów w trakcie realizacji
- Ochrona przed wzrostami cen na rynku
- Pełna przewidywalność budżetu
Projekt i Rezerwacja
Uruchomienie Maszyn
Odbiór w Fabryce
Pakowanie i Wysyłka
Materiał na Działce
Złożenie Bryły
Stan Deweloperski
Przekazanie Kluczy


Zaufany producent domów szkieletowych
Projektujemy, produkujemy i montujemy domy szkieletowe pod klucz. Pomagamy w formalnościach, dostarczamy fundament, transport i serwis.
- Produkcja w hali fabrycznej zapewnia doskonałą jakość wykonania i ochronę przed warunkami atmosferycznymi.
- Montaż na miejscu trwa zaledwie kilka dni — nie czekasz miesięcy na ukończenie budowy.
Podoba Ci się projekt, ale potrzebujesz zmian?
Dostosujemy układ pomieszczeń i bryłę do Twoich potrzeb. Z naszymi architektami zmienisz projekt tak, by był idealny.
- Dowolna zmiana układu ścian działowych
- Dostosowanie wielkości i rozmieszczenia okien
- Możliwość modyfikacji bryły budynku
- Profesjonalne doradztwo naszych architektów

FAQ — szybkie odpowiedzi
Od zamówienia do odbioru kluczy — realizacja trwa 4-6 miesięcy, montaż na działce do 14 dni.
Modele do 70 m² można postawić na zgłoszenie — pomagamy w całym procesie. Przy większych wymagane jest pozwolenie budowlane.
Od 4 650 zł/m². W zależności od pakietu wykończenia obejmuje on konstrukcję, wykończenie, fundament, instalacje i montaż. Dokładny koszt po wycenie.
Tak — oferujemy kompleksową obsługę. Transport i montaż zapewniamy zawsze. Fundament płytowy to dodatkowy koszt, natomiast w pakiecie All-Inclusive jest on zawarty w cenie. Wymiana gruntu liczona jest zgodnie z faktycznie poniesionymi kosztami.
Tak — współpracujemy z bankami i oferujemy pomoc w uzyskaniu kredytu hipotecznego na nasze domy.


