Pakiety wykończenia
Podane ceny są cenami szacunkowymi. Skontaktuj się z nami po dokładną wycenę.
Parametry budynku
Szczegółowa specyfikacja techniczna modelu
Powierzchnia netto
176 m²
Powierzchnia użytkowa
106 m²
Powierzchnia zabudowy
180 m²
Powierzchnia garażu
37 m²
Kubatura
802 m³
Wysokość budynku
7.16 m
Kąt nachylenia dachu
25°
Powierzchnia dachu
280 m²
Minimalne wymiary działki
24,75 x 22,12 m
Pokrycie dachu
prefabrykowane, drewniane wiązary dachowe firmy INTER - LERS, pokryte dachówką ceramiczną lub cementową swissporTON
Instalacja grzewcza
gazowe - piec kondensacyjny; ogrzewanie podłogowe w całym domu, dodatkowo w łazienkach tradycyjne grzejniki typu "ręcznikowiec"
Wentylacja
mechaniczna z rekuperacją
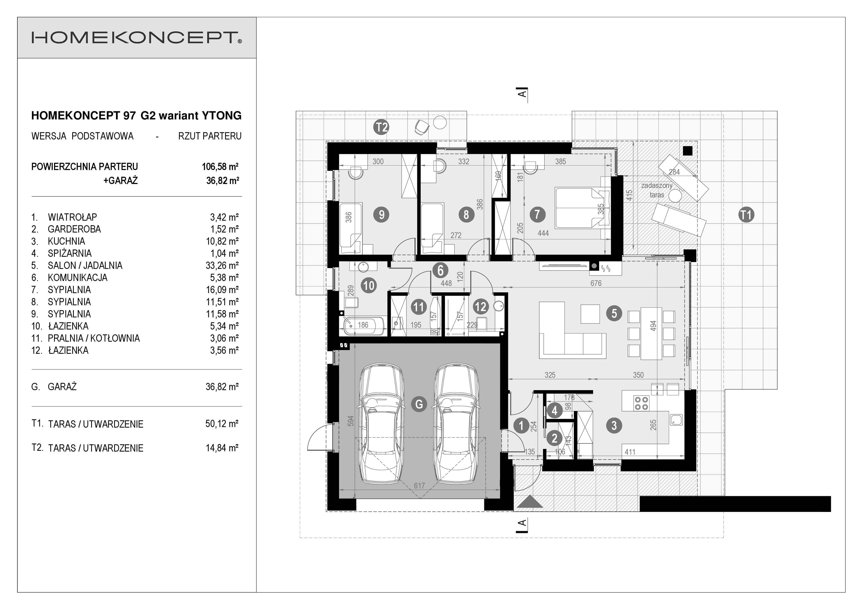
Parter 106 m
RZUT PARTERU POWIERZCHNIA: 106,58 m² 1. WIATROŁAP – 3,42 m² 2. GARDEROBA – 1,52 m² 3. KUCHNIA – 10,82 m² 4. SPIŻARNIA – 1,04 m² 5. SALON / JADALNIA – 33,26 m² 6. KOMUNIKACJA – 5,38 m² 7. SYPIALNIA – 16,09 m² 8. SYPIALNIA – 11,51 m² 9. SYPIALNIA – 11,58 m² 10. ŁAZIENKA – 5,34 m² 11. PRALNIA / KOTŁOWNIA – 3,06 m² 12. ŁAZIENKA – 3,56 m² G. GARAŻ – 36,82 m² T1. TARAS / UTWARDZENIE – 50,12 m² T2. TARAS / UTWARDZENIE – 14,84 m²

Bezpieczny model płatności
Inwestycja podzielona na 8 etapów. Kolejną transzę wpłacasz dopiero po zweryfikowaniu efektów poprzedniej. Zero ryzyka.
Gwarancja stałej ceny
Po podpisaniu umowy cena materiałów zostaje zamrożona na cały okres budowy
- Żadnych dodatkowych kosztów w trakcie realizacji
- Ochrona przed wzrostami cen na rynku
- Pełna przewidywalność budżetu
Projekt i Rezerwacja
Uruchomienie Maszyn
Odbiór w Fabryce
Pakowanie i Wysyłka
Materiał na Działce
Złożenie Bryły
Stan Deweloperski
Przekazanie Kluczy


Zaufany producent domów szkieletowych
Projektujemy, produkujemy i montujemy domy szkieletowe pod klucz. Pomagamy w formalnościach, dostarczamy fundament, transport i serwis.
- Produkcja w hali fabrycznej zapewnia doskonałą jakość wykonania i ochronę przed warunkami atmosferycznymi.
- Montaż na miejscu trwa zaledwie kilka dni — nie czekasz miesięcy na ukończenie budowy.
Podoba Ci się projekt, ale potrzebujesz zmian?
Dostosujemy układ pomieszczeń i bryłę do Twoich potrzeb. Z naszymi architektami zmienisz projekt tak, by był idealny.
- Dowolna zmiana układu ścian działowych
- Dostosowanie wielkości i rozmieszczenia okien
- Możliwość modyfikacji bryły budynku
- Profesjonalne doradztwo naszych architektów

FAQ — szybkie odpowiedzi
Od zamówienia do odbioru kluczy — realizacja trwa 4-6 miesięcy, montaż na działce do 14 dni.
Modele do 70 m² można postawić na zgłoszenie — pomagamy w całym procesie. Przy większych wymagane jest pozwolenie budowlane.
Od 4 650 zł/m². W zależności od pakietu wykończenia obejmuje on konstrukcję, wykończenie, fundament, instalacje i montaż. Dokładny koszt po wycenie.
Tak — oferujemy kompleksową obsługę. Transport i montaż zapewniamy zawsze. Fundament płytowy to dodatkowy koszt, natomiast w pakiecie All-Inclusive jest on zawarty w cenie. Wymiana gruntu liczona jest zgodnie z faktycznie poniesionymi kosztami.
Tak — współpracujemy z bankami i oferujemy pomoc w uzyskaniu kredytu hipotecznego na nasze domy.


